This site is for testing only

Ballygawley Road, Dungannon

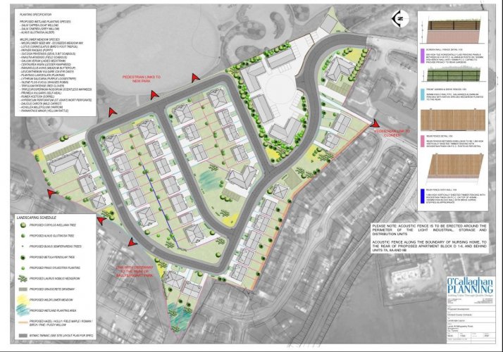
This exciting new development will have a mix of 45 new homes: 8 x 2p1b GN Apartments 23 x 3p2b GN Houses 8 x 5p3b GN Houses 3 x 6p4b GN Houses 2 x 3p2b WC Houses 1 x 5p3b WC House
Dungannon
  • 45 homes
  • Dungannon
  • Mid-Ulster
  • General Needs
  • Orchard County Contracts
  • Estimated Completion Date is April 2027

Dungannon Site Plan

This exciting new development will showcase cutting-edge green design and exceptional energy efficiency.